El enfoque innovador de Riken Yamamoto en la arquitectura y su compromiso con el fomento de la comunidad a través del diseño le han valido el prestigioso Premio Pritzker 2024. Nacido en China en 1945, la carrera de Yamamoto abarca la evolución de la arquitectura moderna e industrial, lo que refleja su profundo conocimiento de estas influencias transformadoras

LA EVOLUCIĆN DEL ESPĆRITU DE DISEĆO DE YAMAMOTO
La Segunda Guerra Mundial fue un punto de inflexión para la arquitectura japonesa. Aunque la tradición seguĆa encontrando su lugar en los proyectos, las prioridades comenzaron a cambiar hacia la recuperación económica y la industrialización, lo que afectó la forma en que se diseƱaban los edificios. Yamamoto explicó cómo esto influyó en su propia obra:

āTras la Segunda Guerra Mundial, Japón perdió muchas ciudades y pueblos tradicionales. Desaparecieron. Quedan muy pocos. Ciudades famosas para los extranjeros, como Kioto y Takayama, aĆŗn conservan paisajes urbanos tradicionales. Creo que debemos seguir preservĆ”ndolos. Sin embargo, con la modernización actual que prioriza el crecimiento económico, la arquitectura estĆ” cambiando. Por lo tanto, creo que los arquitectos son responsables de preservar los paisajes urbanos antiguos y debemos comunicar lo importante que es crear un entorno asĆā.


En el centro de la filosofĆa de diseƱo de Yamamoto se encuentra la creencia de que la arquitectura y la comunidad son inseparables, una visión desarrollada en parte como respuesta a la industrialización de la posguerra. Considera la arquitectura como una herramienta para unir a las personas y fomentar un sentido de pertenencia.
PRINCIPIOS BĆSICOS DE YAMAMOTO
ArmonĆa entre lo construido y lo natural: el umbral
La pĆ”gina de anuncio de la obtención del premio Pritzker por parte de Yamamoto detalla cómo su obra gira en torno a la idea de que la arquitectura alcanza su mĆ”ximo esplendor cuando crea armonĆa entre el entorno natural y el construido. Cuando le preguntamos a Yamamoto sobre esto, se centró en la palabra Ā«umbralĀ».
El umbral es el simbolismo perfecto de la filosofĆa de diseƱo de Yamamoto. El concepto de umbral āla puerta de entrada entre el interior y el exteriorā es lo que Yamamoto se esfuerza por lograr en su arquitectura: amplificar la Madre Tierra en lugar de dominarla.
Sensibilidad contextual
Yamamoto enfatiza la importancia de comprender y responder al contexto en el que se sitúa un edificio. Esto incluye los aspectos culturales, históricos y ambientales del lugar. Cree que la arquitectura debe armonizar con su entorno en lugar de eclipsarlo, un principio que se puede ver claramente en toda su obra.
ESTACIĆN DE BOMBEROS DE HIROSHIMA NISHI: LA COMUNIDAD ES LO PRIMERO
Un excelente ejemplo de la filosofĆa de diseƱo de Yamamoto en acción es la estación de bomberos de Hiroshima Nishi. A diferencia de las tĆpicas estaciones de bomberos construidas Ćŗnicamente para fines de servicio, el diseƱo de Yamamoto presenta una fachada casi transparente. Esta opción de diseƱo permite a la comunidad observar a los bomberos en su entorno de trabajo, lo que mejora la sensación de seguridad del pĆŗblico y la conexión con quienes los protegen. La visibilidad continua de las actividades de los bomberos fomenta un vĆnculo comunitario mĆ”s fuerte, en consonancia con la visión de Yamamoto de la arquitectura como catalizador comunitario.



El parque de bomberos también estÔ cuidadosamente integrado en su entorno urbano. Su diseño tiene en cuenta el contexto circundante, garantizando que complemente el paisaje urbano existente. La forma y los materiales del edificio se eligieron para armonizar con el vocabulario arquitectónico local y, al mismo tiempo, destacarse como una instalación moderna.
El diseƱo del parque de bomberos refleja la estĆ©tica minimalista de Yamamoto, caracterizada por lĆneas limpias y una forma simple pero llamativa. El uso de materiales modernos como el vidrio y el acero le da al edificio un aspecto contemporĆ”neo, mientras que los detalles bien pensados āāle aƱaden una sensación de refinamiento.
VIVIENDAS HOTAKUBO: EQUILIBRIO ENTRE PRIVACIDAD Y COMUNIDAD
El proyecto de viviendas Hotakubo, que consta de 110 unidades que rodean un patio central, ejemplifica el enfoque de Yamamoto en el diseño orientado a la comunidad. El patio, al que solo se puede acceder a través de las propias unidades y de un salón comunitario singular, ofrece un espacio privado y a la vez comunitario para los residentes. Este diseño promueve la interacción entre los residentes al tiempo que mantiene su privacidad, lo que refleja la comprensión matizada de Yamamoto de la vida en comunidad.
Esta intención de diseño se puede ver en el dibujo conceptual de Yamamoto a continuación, que muestra una reunión comunitaria en el patio desde el balcón de un residente.

El proyecto enfatiza la integración de elementos naturales en el entorno habitable. Cada unidad cuenta con grandes ventanales y balcones que brindan abundante luz natural y vistas a la vegetación circundante. El uso de espacios verdes y jardines dentro del desarrollo crea una conexión entre el entorno construido y la naturaleza.

LA COLABORACIĆN REDEFINIDA: UNA MIRADA AL INTERIOR DEL EQUIPO DE YAMAMOTO
Como era de esperar, la visión de futuro de Yamamoto también motiva su enfoque de la colaboración y el trabajo en equipo. Expresó una enorme confianza en su equipo y en su forma de trabajar.
Riken Yamamoto & Field Shop estÔ estructurado para maximizar las oportunidades de colaboración. Todos se comunican con Yamamoto de forma individual y se alienta a todos los miembros del equipo a participar en todos los proyectos. Esto permite a Yamamoto trabajar con cada empleado de forma individual y fomentar relaciones de colaboración mÔs estrechas.
A menudo, el equipo proyecta la pantalla de Vectorworks en un proyector grande para analizar los detalles con Yamamoto. āPor ejemplo, es bueno poder decir cómo afectarĆa al piso inferior si se cambiara ligeramente la ubicación del nĆŗcleoā, dijo Takashi Oka, un diseƱador del equipo de Yamamoto, āy tomamos este tipo de decisiones analizando los dibujos de Vectorworks en un proyectorā

Yamamoto pone un énfasis similar en la colaboración con profesionales fuera de su oficina.
āLos arquitectos necesitan la ayuda de muchos otros profesionalesā, afirma Yamamoto. āEl diseƱo arquitectónico puede ser empĆ”tico con la iniciativa de un arquitecto solo con la colaboración de numerosos profesionales. Desde el principio del proceso de diseƱo, es muy importante colaborar con expertos en seƱalización, mobiliario, paisajismo, textiles, iluminación, sonido, asĆ como en estructura y sistemas mecĆ”nicos e instalacionesā.
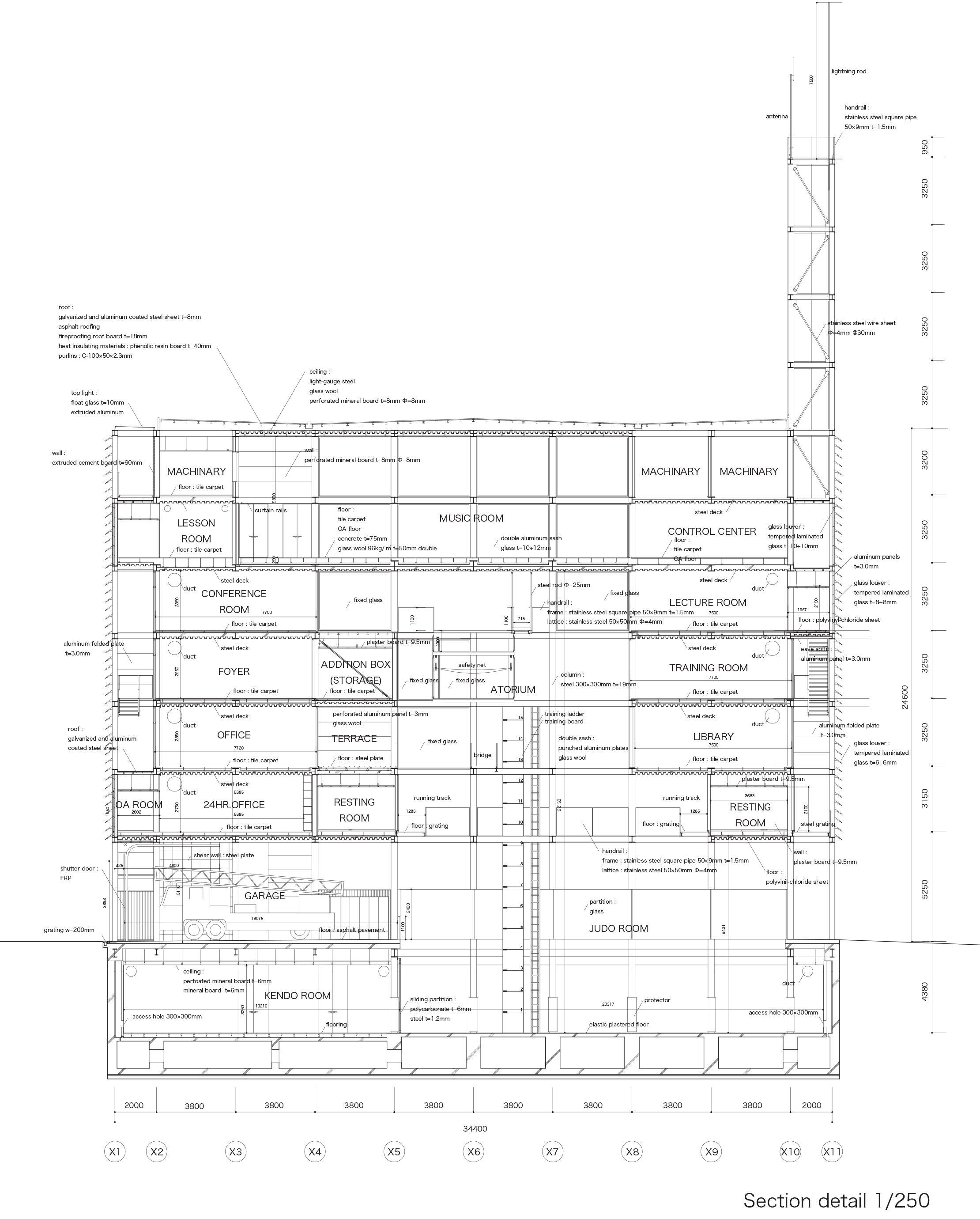
DISEĆO CON VECTORWORKS
AdemĆ”s de la creación de planos y especificaciones de diseƱo, el equipo de Yamamoto utiliza Vectorworks para todas las tareas de diseƱo, como la importación de datos de lĆneas de terreno para crear modelos circundantes y la importación de modelos de apoyo de otro software 3D para crear planos axonomĆ©tricos. Los planos que se muestran a continuación se crearon en Vectorworks para el proyecto de viviendas Hotakubo.

Su equipo afirmó que las capas de Vectorworks son una de las mayores ventajas del software. Compararon las capas con el uso del papel de calco en la Ć©poca de los dibujos a mano. āEs el formato mĆ”s sencillo y razonable para los dibujos arquitectónicosā, afirmó Oka.
El equipo tambiĆ©n compartió que confĆan en Vectorworks por su naturaleza integral. En un solo software, pueden completar dibujos detallados y materiales de presentación para cada fase del proyecto.
FELICITACIONES A RIKEN YAMAMOTO
El enfoque visionario de Riken Yamamoto y sus contribuciones innovadoras a la arquitectura han dejado una huella indeleble en el Ômbito. Sus diseños, caracterizados por su integración armoniosa con el entorno y su profunda relevancia social, reflejan una profunda comprensión de los principios estéticos y funcionales.
El portafolio de Yamamoto es un testimonio de su incansable búsqueda de la excelencia arquitectónica. Su premio Pritzker 2024 es un reconocimiento justo a sus logros sobresalientes y su impacto duradero en la arquitectura. Mientras esperamos sus proyectos futuros, el legado de Yamamoto continúa inspirando y elevando los estÔndares del diseño arquitectónico en todo el mundo.
Lee un poco mas sobre Riken Yamamoto
